Bienvenue !

Projets

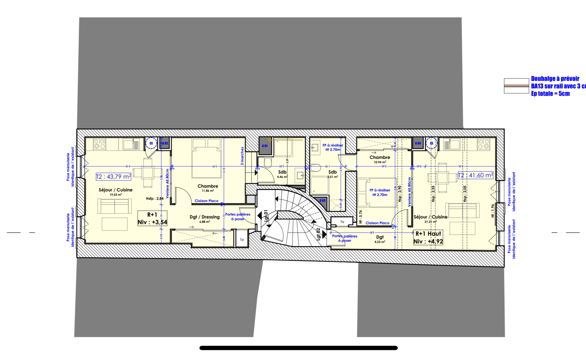
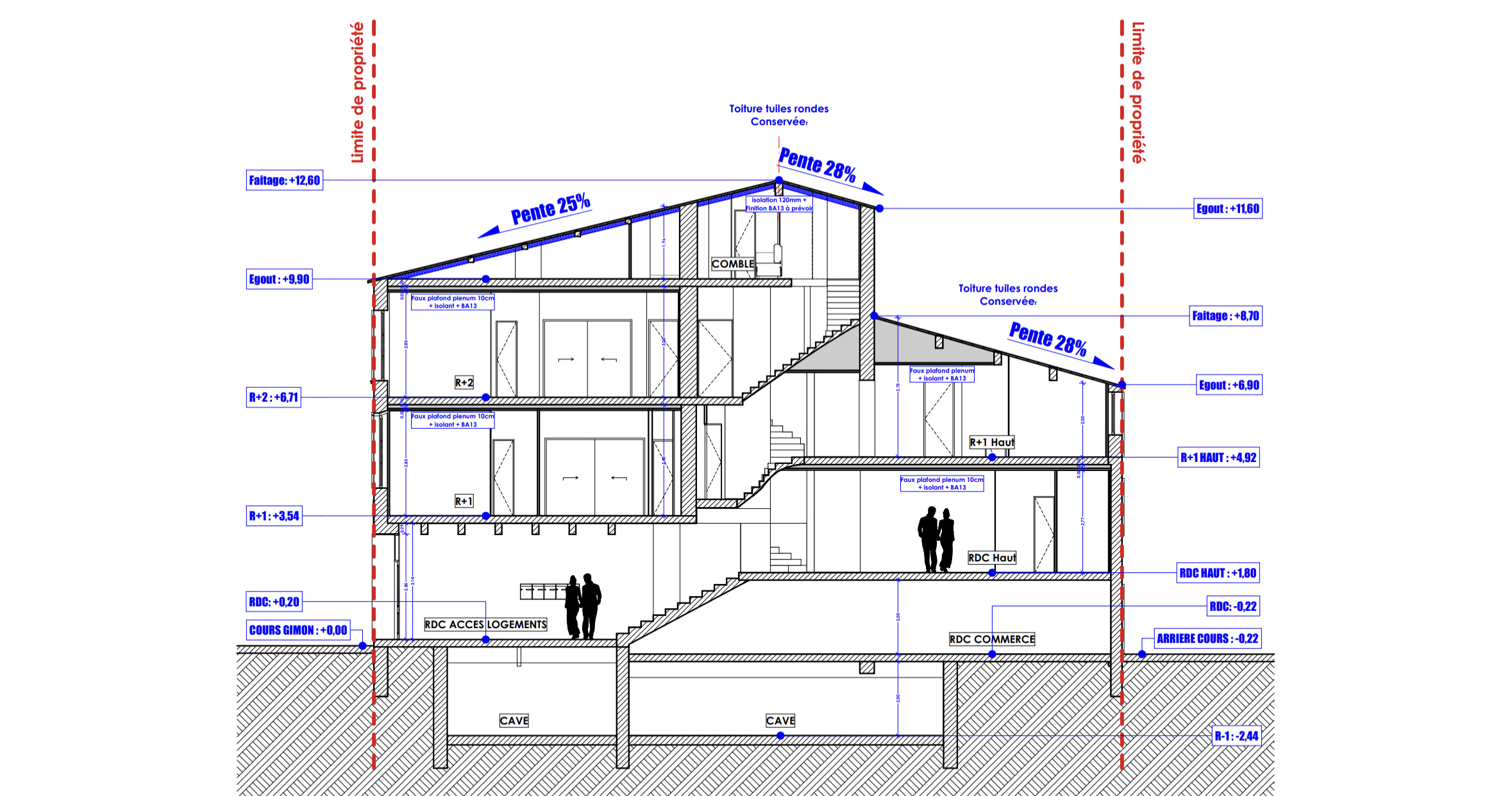
84 COURS GIMON

Réhabilitation d’un immeuble existant en 5 logements et 1 commerce + une cave en plein coeur du centre ville de Salon-De-Provence

Emplacement :
Adresse :

84, Cours Gimon, 13300, Salon-De-Provence

Type de Projet :

Local commercial

Surface:

390m2