Bienvenue !

Projets

MIRAGE – TRAVAUX EN COURS

MIRAGE – TRAVAUX EN COURS

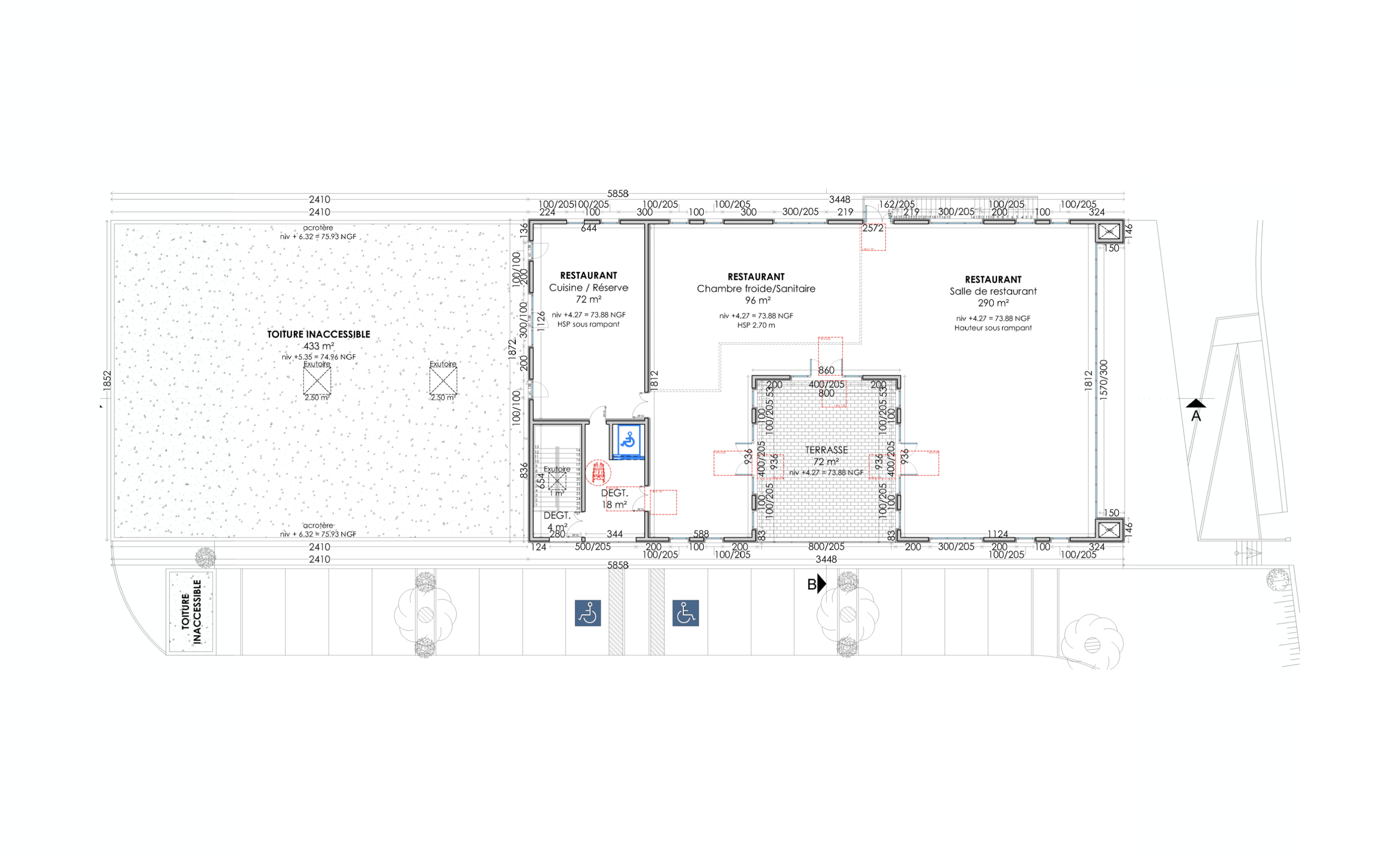
Dans un environnement périurbain, le centre commercial « Mirage » se situe sur la commune de Salon-De-Provence, au Sud du centre-ville, au sein du parc d’activité de la Gandonne et à proximité du Boulevard du Roi René.

Le bâtiment moderne de volumétrie rectangulaire, propose un ensemble de commerces, de services et de bureaux. Il se situe à un carrefour stratégique de voies de communication,  proche du centre ville, collège et lycée.

Le pignon est traité de marnière contemporaine avec une large baie vitré. Afin de marquer ce nouvel élément dans l’environnement urbain, permettant ainsi de valoriser et d’identifier les activités nouvellement implantées.

Un cheminement piéton est prévu pour desservir le pignon Nord-Est du bâtiment directement depuis le trottoir de la rue des Ventadouiro pour un meilleur repère visuel et une meilleure sécurisation des piétons.

Les espaces libres de toute construction, voirie ou stationnement seront traités en espaces verts.

40 places de stationnement vont venir compléter les 150 places déjà présentes.

Emplacement :
Adresse:

Zone d'activité - La Gandonne

Type de Projet :

Ensemble commercial et bureau

Surface créée :

1600m2

Architecte :

Cardo Architecture

Livraison :

4eme trimestre 2022